Thadenstraße
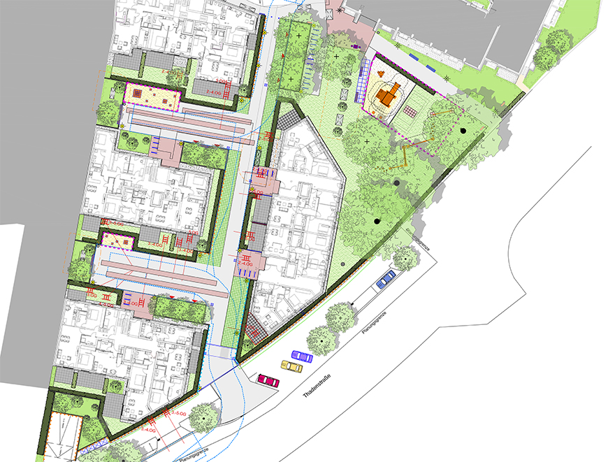
Durch die Neubebauung in unmittelbarer Nähe zum Wohlerspark entstand zwischen Norderreihe und Thadenstraße ein neues Wohnquartier in der Altstadt von Hamburg-Altona. Die Wegeverbindung zwischen Thadenstraße und Norderreihe wurde als interne Hoferschließung ausgebildet. An dieser Verbindung, welche auch als Feuerwehrdurchfahrt dient, liegen die beiden zentralen Hofflächen der städtischen Bebauung.
Durch den Höhenversatz zwischen Bebauung und Tiefgaragendecke entstehen Gartenmauern mit Hecken zu den privaten Terrassen und Einfassungen auf Sitzmauerhöhe, welche auch für die Bäume genug Wurzelraum auf der Tiefgarage sicherstellen. Zum Wohlerspark wurde eine dreieckige parkartige Grünfläche mit Spielangeboten in den alten Baumbestand integriert.
Bei der Materialauswahl werden die rötlichen Elemente der Klinkerfassaden zur Strukturierung der Eingangsbereiche und Hofplätze aufgenommen. Der Bereich der Wegeverbindung ist im Zusammenhang mit den öffentlichen Wegeflächen mit grauen Betonpflasterplatten in verschiedenen Abmessungen gestaltet.
| Thadenstraße, Hamburg Altona | |
| Bauherr: | Bauverein der Elbgemeinden e.G., CDS Wohnbau Hamburg GmbH |
| Architekt: | LRW Architekten, Hamburg |
| Planungs-/Bauzeit: | 2013 - 2016 |
| Bausumme/Fläche: | ca. 400.000 € / ca. 3.000 m² |
| Leistungsphasen: | 1 - 6 |

