KITA-Winterstraße
Bei der FRÖBEL Kindertagesstätte in verdichtetem urbanem Umfeld in HH-Altona wurden die Außenspielflächen auf Dachterrassen in 2 Ebenen gestaltet. Die Lage auf dem Gelände der ehemaligen Reichsbahndirektion in direkter Benachbarung zum Bahnhof Altona sowie der Zuschnitt der Flächen ließen die Idee des Themas „Himmelszüge - Spielen auf dem Dach“ entstehen.
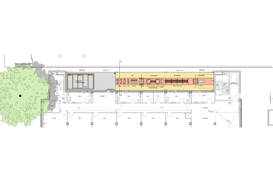
Im langen und schmalen Krippen-Außenbereich wurde ein Zug mit verschiedenen Spiel-, Lern- und Kommunikationsangeboten sowie einer „Wartehalle“ geschaffen. Im Elementarbereich auf der obersten Dachebene verläuft eine gewundene Eisenbahn-Kletterstrecke durch Landschaften aus Felsen, Sand, Wasser und Wiesen und begegnet dort Tieren, Schiffen und einem Dorf mit vielfältigen Spielangeboten.
Auf Grund der geringen Aufbauhöhen und Flächenbelastungen und der bauaufsichtlichen Auflagen hinsichtlich Statik und Brandschutz wurden verschiedene Sonderbauweisen erforderlich.
| Winterstraße, Hamburg Altona | |
| Bauherr: | FRÖBEL Gruppe Norddeutschland |
| Architekt: | LH Architekten (LP 1-3), Schaub & Partner Architekten (LP 4-9) |
| Planungs-/Bauzeit: | 2013 - 2014 |
| Bausumme/Fläche: | ca. 250.000 € / 1. OG = 137 m² / 4. OG = 357 m² |

