FRÖBEL Kindergarten
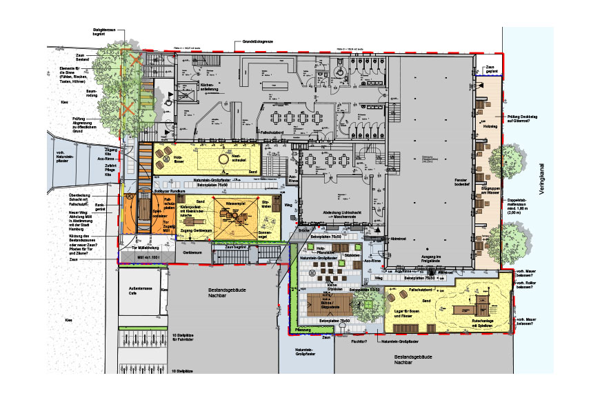
Der FRÖBEL-Kindergarten in der Industriestraße liegt direkt am Vehringkanal in Hamburg inmitten eines Gewerbegebietes. Zwischen dem Bestandsgebäude Industriestraße 107, welches für die
FRÖBEL gGmbH zum Kindergarten umgebaut wurde, und den angrenzenden Industriegebäuden befinden sich die Außenanlagen in einer Hofsituation. In Anlehnung an die Motive des Kanals und die früher existierende Transportbahn zur Versorgung der Industriebetriebe wurde als Leitthema der Gestaltung „Transport, Container und Schiffe“ entwickelt.
Die Hofflächen wurden in einen Spielbereich für Krippenkinder und einen Spielbereich für Elementarkinder gegliedert. Die Spielelemente wurden aus Holz in Form von Containern, Kisten, Fässern und Kränen gestaltet. Das Spielangebot umfasst unter anderem eine Wasserspielanlage, eine Bühne, einen Spielturm mit Rutsche, Sitz- und Kletterelemente.
Die Spielflächen wurden mit Spielsand hergestellt. Für die begleitenden Wege- und Platzflächen konnte in Teilbereichen das ursprüngliche Natursteinpflaster wiederverwendet werden.
Es konnten direkte Sichtbeziehungen auf den Kanal geschaffen werden, was mit erhöhten Anforderungen an die Sicherung der Spielflächen verbunden war.
| FRÖBEL Kindergarten Industriestraße, Hamburg - Wilhelmsburg | |
| Bauherr: | FRÖBEL Bildung und Erziehung gGmbH, Region Norddeutschland |
| Planungs-/Bauzeit: | 2014 - 2016 |
| Bausumme/Fläche: | ca. 190.000 € / ca. 780 m² |
| Leistungsphasen: | 1 - 8 |

