KITA-Fischbeker-Höfe
Im neu entstandenen Wohn- und Gewerbequartier Fischbeker Heidbrook befindet sich die Kita in einem historischem Kasernengebäude der ehemaligen Röttiger-Kaserne.
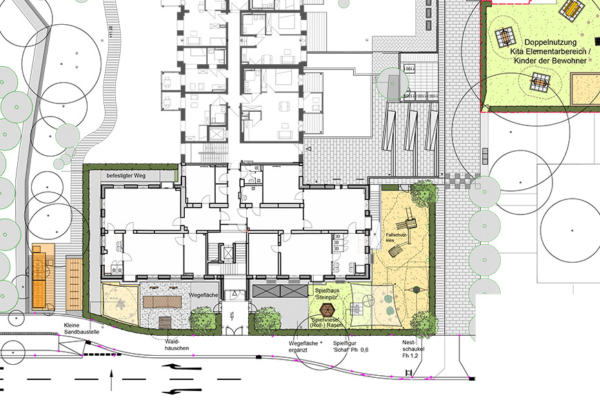
Die Außenanlagen gliedern sich hier in einen hausnahen Bereich für die Krippenkinder und einen separaten in Sichtweite liegenden Bereich für die Elementarkinder in einer benachbarten Fläche.
Im Kleinkindbereich werden unterschiedliche Materialien und Spielelemente für die Kinder angeboten. Bei den Spielgeräten wird das Thema der angrenzenden Heidelandschaft aufgenommen.
Verschiedene Baumpflanzungen, als Entree- und Reihenelement sorgen für einen grünen Akzent der Spielflächen. Der Elementarbereich bieten eine großzügige Grünfläche mit verschiedenen kleineren Spielangeboten, Sandspiel- und einen Rasen-Bolzplatz.
Gerahmt ist dieser kleine parkähnliche Bereich von Bestandsbäumen.
Dieser Spielbereich wird sowohl von der KITA als auch von den Anwohnern genutzt.
| Kita Fischbeker Höfe | |
| Bauherr: | Fröbel GmbH Norddeutschland |
| Planungs-/Bauzeit: | 2020 - 2021 |
| Bausumme/Fläche: | ca. 215.000.- € / ca. 1.000 m² |
| Leistungsphasen: | 1 - 8 |

