Getriebebau Nord
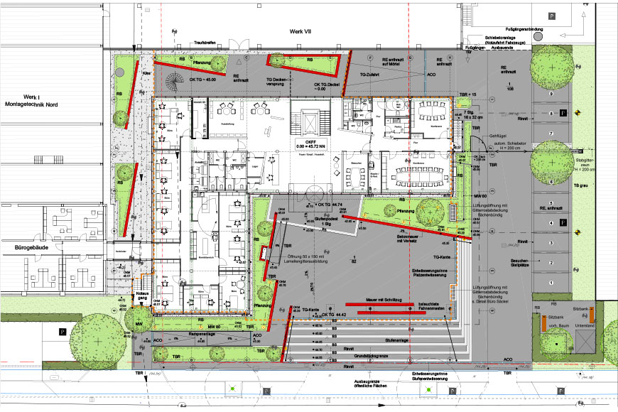
Im Rahmen der stetigen Unternehmensexpansion hat die Firma Getriebebau NORD am Hauptstandort Bargteheide ein neues Bürogebäude erstellt. Die Außenanlagen geben dem Neubau einen ansprechenden Rahmen und vermitteln zu den Nachbarnutzungen.
Die Außenanlagen befinden sich in drei Ebenen: Eine großzügige Freitreppe mit Vorplatz leitet den Besucher von der Straße und von den Besucherparkplätzen in Richtung Eingang. Der barrierefreie Zugang ist berücksichtigt. Die Ausrichtung der Stützwände und Einfassungen greift Gestaltungselemente aus dem Gebäude auf. Die zweite Ebene ist ein vom Foyer und aus den Büroräumen einsehbarer Innenhof, der durch Verwendung der gleichen Materialien und Formen eine gestalterische Einheit mit den Außenanlagen bildet. Beide Flächen befinden sich zu großen Teilen über einer Tiefgarage.
Die Dachfläche um das Staffelgeschoss ist unter anderem zur Nutzung bei Feierlichkeiten und Schulungen mit einer großzügigen Holzterrasse ausgestattet, die von einer Landschaft aus grobem Schotter mit einem bepflanzten Hügel gerahmt ist.
| Neubau Produktionshalle und Bürogebäude Getriebebau Nord, Bargteheide | |
| Bauherr: | Getriebebau NORD GmbH & Co. KG |
| Architekt: | Architekturbüro Ingolf Säckel |
| Planungs-/Bauzeit: | 2011 - 2015 |
| Bausumme/Fläche: | ca. 460.000 € / ca. 2.200 m² |
| Leistungsphasen: | 1 - 9 |

