Auf dem langen Asper
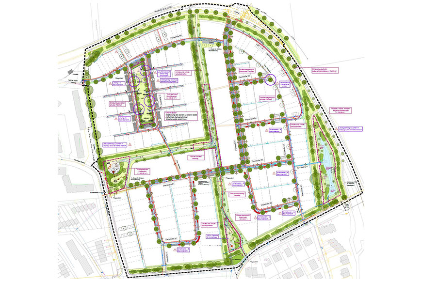
Das Entwurfskonzept der Freianlagen für die Erschließung des Wohngebietes „ Auf dem langen Asper“ ist auf der Grundlage des Bebauungsplanes Nr. 50 der Gemeinde Wentorf bei Hamburg und des grünordnerischen Fachbeitrages des Büros Landschaftsplanung Jacob erarbeitet worden.
Die vorhandene Knickstruktur des Gebietes bleibt als Grundgerüst erhalten. Die Grünzuge stellen mit den Wegeverbindungen und den Entwässerungsmulden entlang der Knicks die innere autofreie Erschließung des Gebietes für Fußgänger und Radfahrer dar. In den Aufweitungen der Grünzüge sind eine Spiellandschaft für ältere Kinder und ein Spielbereich für Kleinkinder angelegt worden. Der Quartiersplatz stellt die zentrale Mitte der nordwestlichen Wohnbebauung dar. Der Platz soll als Grünes Band innerhalb des Straßenraums für Aktivitäten und Rasenballspiele genutzt werden.
Das Regenrückhaltebecken im südöstlichen Teil des Geländes am Rand der Wohnbebauung zwischen den vorhandenen Knicks ist naturnah gestaltet worden. Die Erschließungsstraßen werden von standortgerechten Baumpflanzungen begleitet.
| Erschließung B–Plan 50 Wohngebiet „Auf dem langen Asper“ Gemeinde Wentorf bei Hamburg | |
| Bauherr: | Wentorfer Sachsenwald GmbH & Co.KG vertreten durch GEV Gesellschaft für Entwicklung und Vermarktung AG |
| Planungs-/Bauzeit: | 2012 - 2018 |
| Bausumme/Fläche: | ca. 640.000 € / ca. 12.750 m² |
| Leistungsphasen: | 1 - 9 |

